Dom mobilny całoroczny 60m2 Tytan

Powierzchnia użytkowa m²60
  • 149 000 zł.

Skontaktuj się z nami

Telefon:

+48 500 600 873

Email

biuro@kieryk.com

Opis domu

TYTAN 60 to nowoczesny dom mobilny o powierzchni zabudowy 60 m², wykonany w trwałej technologii stalowo-drewnianej. Dostarczany jest na działkę jako gotowy moduł, co pozwala na jego szybki montaż – nawet w kilka godzin.

To idealne rozwiązanie dla osób, które chcą uniknąć długiej i kosztownej budowy, a jednocześnie cieszyć się komfortowym, funkcjonalnym domem.

Dodatkowym atutem jest brak konieczności wykonywania tradycyjnych fundamentów.

Montaż i ustawienie domu na terenie Polski są wliczone w cenę.

Read More

Pakiety domu

Basic

149 000 zł netto

Stan surowy zamknięty

  • stalową konstrukcję nośną całego modułu
  • drewnianą konstrukcję szkieletową ścian zewnętrznych
  • drewnianą konstrukcję dachu
  • drewnianą konstrukcję ścian działowych
  • elewację zewnętrzną
  • pokrycie dachu
  • podłogi
  • okna
  • drzwi zewnętrzne

Standard

199 000 zł netto

Wersja rozszerzona zawierająca dodatkowo:

  • instalację elektryczną
  • instalację wodno-kanalizacyjną
  • ocieplenie ścian i dachu
  • paroizolację

Premium

249 000 zł netto

Dom w wersji pod klucz – gotowy do zamieszkania

  • wykończone ściany
  • wykończone sufity
  • gotowe podłogi
  • drzwi wewnętrzne
  • ogrzewanie podłogowe elektryczne
  • klimatyzację 3,5 kW z funkcją grzania
  • rekuperator ścienny
  • kompletnie wyposażoną łazienkę

Dom składa się z:

  • 1
  • Salon
  • 2
  • Sypialnie
  • 1
  • Łazienka
  • 1
  • Aneks kuchenny

Wymiary i parametry

  • Cena 149 000 zł.
  • Powierzchnia użytkowa 60 m²
  • Sypialnie 2
  • Łazienka 1
  • Aneksy kuchenne 1
  • Salony 1

Standard wykończenia

Konstrukcja całego domu stalowa: profil 100x100x3 mm zabezpieczona antykorozyjnie.

Podłoga zabezpieczona przed gryzoniami.

Dach pokryty blachą na Rąbek lub blachodachówką.

Konstrukcja dachu i ścian zewnętrznych stalowa +szkielet ( drewno C24 + płyta konstrukcyjna 18mm + membrana )

Ocieplenie wełną mineralną Rockwool, współczynnik lambda 0,035 W/mK o dużej gęstości i sprężystości – grubość ocieplenia 25 cm.

Witryny i drzwi PCV wysokiej klasy 6-cio komorowe, trzyszybowe U=0,7.

W komplecie okucia dachowe i rynny stalowe.

Parametry techniczne

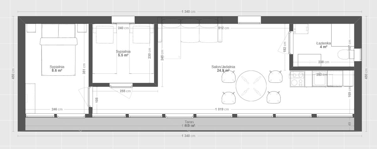
Parter

Salon + aneks kuchenny:24,9 m2
Sypialnia 1:8,6 m2
Sypialnia 2:5,5 m2
Łazienka:4 m2

Wysokość pomieszczeń

Wysokość salonu w najwyższym punkcie:3,4 m
Wysokość sypialni:3,4 m
Wysokość łazienki:2,5 m

Parametry domu

Długość:13,4 m
Szerokość:4,5 m
Wysokość całkowita:4,2 m
Powierzchnia użytkowa:49 m2
Powierzchnia zabudowy:60 m2

Rzuty

Grafika: rzut tytan 60

Harmonogram płatności

Wartość umowy (netto): 149 000 PLN
Wariant brutto poniżej (8% / 23%)  •  Liczba transz: 5
Transza 1
30%
Transza 2
20%
Transza 3
20%
Transza 4
20%
Transza 5
10%
TranszaKwota • Procent
Transza 1 — po podpisaniu umowy 44 700 PLN30%
Transza 2 — druga transza 29 800 PLN20%
Transza 3 — trzecia transza 29 800 PLN20%
Transza 4 — czwarta transza 29 800 PLN20%
Transza 5 — koniec realizacji 14 900 PLN10%
Razem (netto) 149 000 PLN100%
TranszaProcentKwota
Transza 1 — po podpisaniu umowy30% 44 700 PLN
Transza 2 — druga transza20% 29 800 PLN
Transza 3 — trzecia transza20% 29 800 PLN
Transza 4 — czwarta transza20% 29 800 PLN
Transza 5 — koniec realizacji10% 14 900 PLN
Razem (netto)100%149 000 PLN
+ 8% VAT (osoba prywatna, bez NIP)
Cena brutto
160 920 PLN
+ 23% VAT (firma/instytucja, z NIP)
Cena brutto
183 270 PLN

Harmonogram płatności w przypadku kredytu

Kontakt z firmą leasingową

Organizujemy kontakt z firmą leasingową lub przedstawicielem banku w celu udzielenia kredytu.

Transport i usługi dźwigowe

Pomagamy w znalezieniu najlepszej oferty transportowej i usługi dźwigowej.

Zamów wizytę

Twoje informacje

Zapytaj o ofertę

Podobne oferty