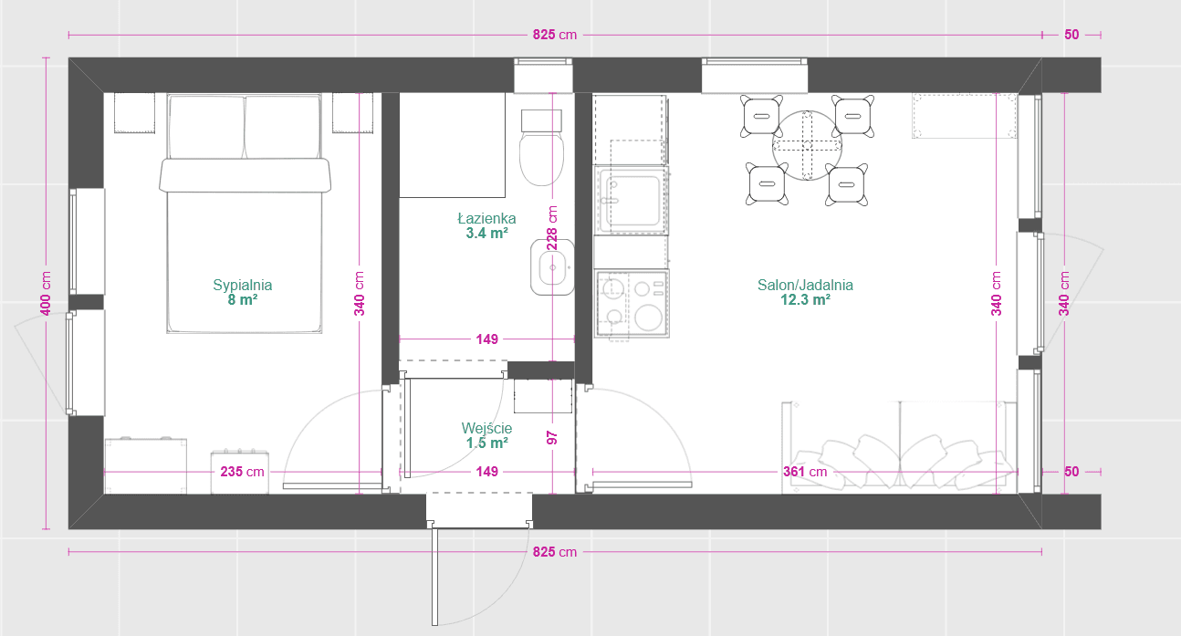
Basic
Stan surowy zamknięty
- stalową konstrukcję nośną całego modułu
- drewnianą konstrukcję szkieletową ścian zewnętrznych
- drewnianą konstrukcję dachu
- drewnianą konstrukcję ścian działowych
- elewację zewnętrzną
- pokrycie dachu
- podłogę
- okna
- drzwi zewnętrzne



























